中古マンション
磯路小徒歩3分!市岡公園もすぐの安心環境
ユニハイム市岡
価 格 3,380万円
所在地 大阪市港区磯路2-21-8
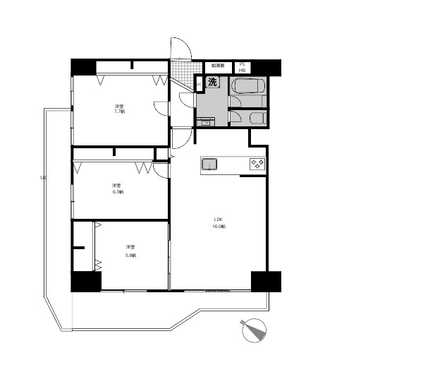
間取り 3LDK
面 積
83.52㎡
POINT
小学校まで徒歩3分(約224m)という近さは、お子様の通学はもちろん、保護者の方にとっても大きな安心材料。
さらに市岡公園も徒歩3分と近く、放課後の外遊びもすぐそばで見守れる環境です。
港図書館(徒歩6分)や区役所(徒歩8分)も近く、行政サービスも身近に受けられる充実した周辺環境が魅力です。
- 物件名
- ユニハイム市岡
- 住所
- 大阪市港区磯路2-21-8
- 価格
- 3,380万円
- 交通
- 大阪メトロ中央線【弁天町駅】徒歩5分
- 築年数
- 1979年2月
- 間取り
- 3LDK㎡
- 構造
- SRC造
- 駐車場
- ー
- 面積
- 83.52㎡
- バルコニー面積
- 20.96㎡
- 階建 / 階
- 14階建/2階部分
- 土地権利
- 所有権
- 管理形態
- 管理員:日勤、管理形態:全部委託
- 管理費
- 7,600円
- 修繕積立金
- 16,040円
- 現況
- 空家
- 引渡
- 要相談
- ペット相談
- 小学校区
- 磯路小学校
- 中学校区
- 市岡中学校
- 設備
- 備考
間取り図
MAP
この物件を問い合わせる
TOP > サービス > 不動産物件情報 > ユニハイム市岡







